Menlo-Atherton Little League

Description

The Menlo-Atherton Little League (M-ALL) project consists of certain improvements to the existing Little League baseball diamond in Holbrook-Palmer Park. A link to the plans is provided below. There will be improvements to the field and surrounding facilities, ranging from leveling the field, erecting temporary removable outfield fences, and construction of a small electric scoreboard, permanent foul line poles, covered seating and new restrooms that will result in permanent improvements to the Park. The restrooms and associated facilities will be owned by the Town upon completion of the project. Restrooms will be available for Park users. The cost of the improvements will be paid for by the Menlo-Atherton Little League using only private funds.

Color Rendition - Little League Facility

History & Status

August 2010 - In August 2010, M-ALL began initial discussions with the Atherton Dames, Park neighbors and the Park & Recreation Commission about plans for erecting and maintaining spectator bleachers at the Park. Story poles were installed and community outreach was conducted by M-ALL for the development concept.

April 2011 - In April 2011, the Park & Recreation Commission, based on review of the conceptual plans (Link to Conceptual Plans (PDF) - attachment to future Council item) voted to support the M-ALL proposal, however, concern was expressed about parking and trees in the outfield section of the proposal.

May 2011 - In May 2011, the City Council reviewed the conceptual plans and referred the item to the Planning Commission for additional community outreach.

August 2011 - In August 2011, the Planning Commission reviewed conceptual plans and discussed a process to review the proposal. Additionally, the Commission asked that M-ALL prepare more detailed plans for review.

June 2012 - In June 2012, the Planning Commission reviewed more detailed plans submitted by M-ALL. Notices of the meetings were mailed to all Atherton residents. The Commission and M-ALL agreed to removal of the item from the July 2012 Planning Commission Agenda pending the ballot measure.

July-August 2012 - In July/August 2012, the City Council approved a ballot measure to go before the Atherton community asking "Should the Town permit the Menlo-Atherton Little League to improve the baseball field and surrounding areas at Holbrook-Palmer Park, including covered seating for spectators, an improved playing area for children, and new restrooms for all park users, using private funds only?" (Agenda and Staff Report)

November 2012 - In November 2012, the ballot measure successfully passed 75.12% (2,901 votes) to 24.88% (961 votes). 

January 2013 - In January 2013, the City Council reviewed and approved a process for review of the project development and use agreement. The City Council authorized a Subcommittee from the Park & Recreation Commission to inform/advise the Planning Commission's review of the project. It was noted that there were many components of the project that were driven by the language of the ballot measure - these included the provision of covered seating, dugouts, foul-poles, and other amenities. These components could not be eliminated or substantially modified. It was also noted that the ballot measure specified that the project would move through normal Town planning processes. The project, as it was proposed, met all of the Town's land use and zoning requirements; review by the Planning Commission was not required. Nevertheless, the Council wished to hear the feedback from the Planning Commission. (Agenda Packet & Staff Report)

July 2013 - In July 2013, the Planning Commission provided the City Council with thoughts and recommendations regarding the project. The Commission articulated that improvements to the existing field is necessary, but that the proposed improvements are too monumental, too large in scale, and counter to maintaining the rustic character of the Park. The Commission expressed unanimity in their support for removable fences, scoreboard, and foul poles. It was noted that many of the recommendations from the Planning Commission altered some of the physical improvements proposed by M-ALL and included within the ballot measure language, printed arguments for an against Measure M, and the impartial analysis. The passage of Measure M set the parameters for the approved construction of many of the improvements.

August 2013 - In August 2013, the City Council heard the recommendations of the Planning Commission, reviewed the scope of the project, directed staff with respect to the use and responsibilities regarding the construction of the proposed improvements; and directed staff with respect to drafting the development and use agreement. (Staff Report (PDF) with attachments to include July 2013 Planning Commission comments)

September 2013 - In September 2013, the City Council provided direction regarding the scope of improvements to the little league facility and surrounding areas of the Park. The Council provided direction with respect to the seating structure, the dugouts, foul line fencing, foul poles, electronic scoreboard, and facility maintenance. The Council reviewed the draft facility agreement and provided feedback on the primary business points of the Facility Use Agreement. (Staff Report (PDF) with attachments)

January 2014 - In January 2014, the business points for the Facility Development and Use Agreement for Menlo-Atherton Little League improvements at Holbrook Palmer Park was approved by the Council. Staff presented the Report and asked the Council to approve the business points of the agreement, direct the City Attorney to prepare the Agreement, and authorize the City Manager to execute the Agreement. (Staff Report (PDF) with attachments)

After discussion and public comment, the Council approved the staff recommendation, with the caveat that there be a “post-season” check-in on how things worked and what needs to change year-to-year and that the facility be constructed in a manner that is consistent with the historic character of facilities in the Park. The detailed business points are articulated within the Staff Report (PDF).

March 2014 - In March 2014, the Mayor appointed a City Council Ad Hoc Committee to work with staff on a determination of historic character conformance on the Little League project. (Staff Report (PDF))

September 2014 - In September 2014, the final agreement was executed by all parties and M-ALL began working on the final revisions to their submitted plans through the Building Department Plan Check. All permit fees related to processing of their development application were paid. The Town also negotiated a number of site improvements beyond the basic project scope to address pathway issues, facility improvements, planning for future improvements (conduits, etc.), parking lot improvements, and site electrical. (Development and Use Agreement (PDF))

November 2014 - In November 2014, work began on the project. Special attention is being paid to site coordination, fencing, and continued park safety during construction. All issues raised were thoroughly addressed and satisfied prior to execution of the agreement.

Access to users and user groups in the park is not affected by construction of the Little League.

Documents Available on the Town's Website

2000 Approved M-ALL Use Agreement (PDF)
2012 Ballot Measure Regarding Little League Proposal (PDF)
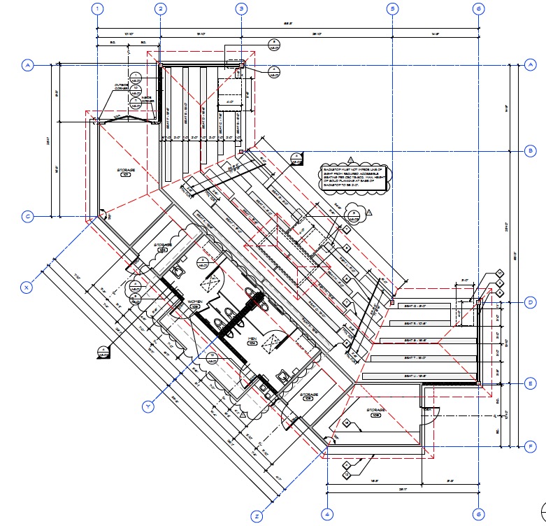
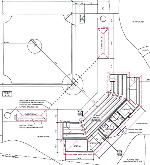
2013 Little League Ballpark Plans (PDF)
2014 Approved M-ALL Development and Use Agreement (PDF)
2014 Little League Ballpark Final Plans (PDF)

The entire set of final plans for the Little League Ballpark Plans can be viewed in the Town's Building Department anytime between 8:00 a.m. and 11:00 a.m. and 1:00 p.m. through 4:00 p.m.

Frequently Asked Questions

1. The design review process typically utilizes the tool of "story poles" to depict the height/size/bulk of proposed development. Even though the Town does not require design review review in its planning process, was this tool used for this project?

Yes and no. The Town's planning process does not have a design review component by law and the Town does not typically require story poles as part of a project's review. However, when this project was originally proposed by M-ALL, the group erected story poles as part of their community outreach process. The story poles were based on the concept plans proposed by M-ALL at the time.

2. Have the plans changed over time from the original concept plans? 

Yes. The original 2011 concept plans shown as an attachment to the staff report (PDF) included a permanent backstop, seating, dugouts, scoreboard, victorian-style grandstand, complete overhaul of the turf, drainage & irrigation, an on-going commitment for care & maintenance, and funding for tennis court resurfacing, storage, trees, and additional park beautification.

The currently approved plans have been altered to ensure that the facility is consistent with the historic character of the Park, added restrooms for general Park use, limited the permanent fencing, reduced the size of the covered bleachers, and added additional park beautification requirements.

Color Rendition - 2011 Little League Facility

 The requirement for funding for tennis court resurfacing, on-going commitment for care & maintenance, and other general park improvements (ADA parking, improved pathways, etc.) were also included. View a copy of the final plans (PDF).

3. What are the hours and conditions of use by M-ALL for the facility?

View the existing agreement with M-ALL from 2000 (PDF) provided that M-ALL had exclusive use of the facilities during the months of February, March, April, May, and June (the "Season"). M-ALL's use during the Season was limited to the following:

Monday through Friday - Use no earlier than 3:30 pm and no later than 7 pm.
 Saturday - Use no earlier than 9 am and no later than 4:30 pm; with a break between 11:30 am and 1 pm.

View the new agreement with M-ALL from 2014 (PDF) provides for essentially the same use. M-ALL has exclusive use of the facilities during months of February, March, April, May and June (the "Season"). M-ALL's use during the Season is limited to the following:

Monday through Friday - Use no earlier than 4:30 p.m. and no later than 7:30 p.m.
Saturday - Use no earlier than 8:45 a.m. and no later than 4:30 p.m.

M-ALL's exclusive seasonal use of the facility has been essentially the same for the last 14+ years and the new Development and Use Agreement (PDF) makes no significant changes to that use. The Town offers similar exclusivity of use to other groups for their areas during their use periods - AYSO, Lacrosse, Tennis, etc. During these exclusive use periods, the Town has the ability to override the agreement for a Town-purpose; however, the Town cannot let out the space for other groups. Outside of the exclusive use periods, the Town can let out the space to other groups and the space can be used by the general public on a first-come, first-served basis.

4. Measure M provided that the project, if approved by voters, would still have to go through the normal Town land use review process. Was that requirement met? 

Yes. The proposed development was consistent with approved uses in the Park. By law, the project did not require a Conditional Use Permit, Special Use Permit, Variance, Exception, or any other exemption from Town law. As such, the project was not required to go through the Planning Commission and could technically have been approved at the staff level. However, the Council felt that the project would benefit from continued public outreach and awareness. As such, since the project had already been through the Park and Recreation Committee, the Council directed that the Planning Commission provide the Council with feedback related to the development. The Commission reviewed the project (see timeline above) and provided feedback to the Council on the development. Because many of the concerns expressed ran counter to the language of the approved ballot measure, some of the items could not be changed. Nevertheless, the Council negotiated several amendments to the project with M-ALL based on feedback from the Planning Commission.

In the end, M-ALL removed some of the proposed permanent outfield fencing, committed to a removable scoreboard, relocated the scoreboard, modified the foul poles, added historic character consistency to the building, upgraded the restroom facilities, and ultimately reduced the size of the overall structure.

5. How big is the actual seating area?

The area includes 4 storage areas on the back side of the seating area (totaling approximately 545 square feet) to replace the existing storage shed (which will now be used by the Dames, Tennis, AYSO & Lacrosse) and for storage of the outfield fencing and other items during the off-season period. These storage areas are separated by 2 restrooms (one male and one female) open to all park users as well as drinking fountains (approximately 300 square feet). The bleacher side of the structure is about 1,160 square feet. The bleacher area itself is about 13 feet deep and consists of 5 rows of separated bleachers (approximately 248.8 linear feet of bleacher seating). Depending on the spacing needs per person, by building code (18" per), that equates to 165 seats and at general seating (24" per), that equates to 124 seats. The roof is a standard 15 foot pitched roof with a cupola, weather vane, and widows walk. Total square footage for the public spaces and the bleacher area is at an approximate 2,005 square feet. For comparison purposes, the size of a standard tennis court is 78 feet long and 36 feet wide or 2,808 square feet.

Little League Faciity
Little League Facility - Measured